| 建築年月 | 2001年 |
|---|---|
| 築年数 | 築24年 |
| 工期 | 3ヶ月 |
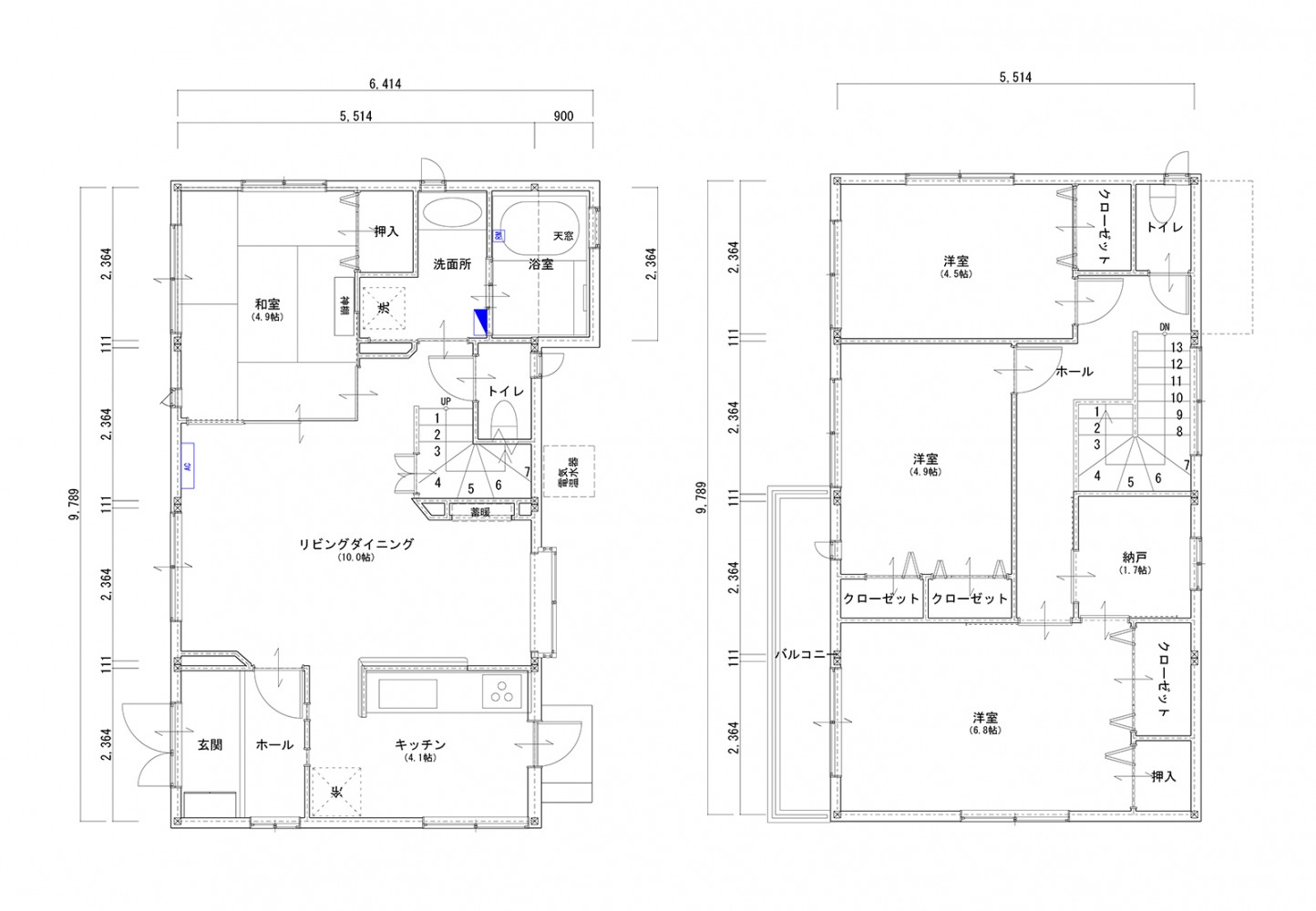
| 間取り | 4LDK |
| 施工面積 | 115.68㎡ |
| 施工内容 | 365リノベ(改修) |
それぞれの時間を大切にしながら、同じ空間で安心して過ごせるようになりました。
無理なく暮らせる間取りになり、日々の動きも楽になったと感じています。
既存の間取りを活かしながら、動線や視線の抜け、素材のバランスを丁寧に整えました。
それぞれの生活リズムを大切にしながら、無理なく心地よく過ごせる住まいを意識しています。
どうぞお気軽にお問い合わせください
中古戸建て・中古マンション・土地などの物件探しやリフォーム、
売却のことまで不動産に関することならお任せください!