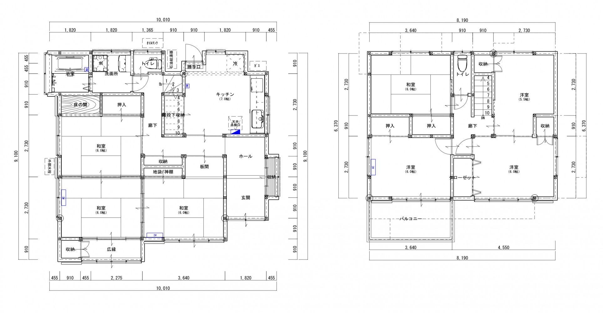
| 建築年月 | 1984年 |
|---|---|
| 築年数 | 築41年 |
| 工期 | 3ヶ月 |
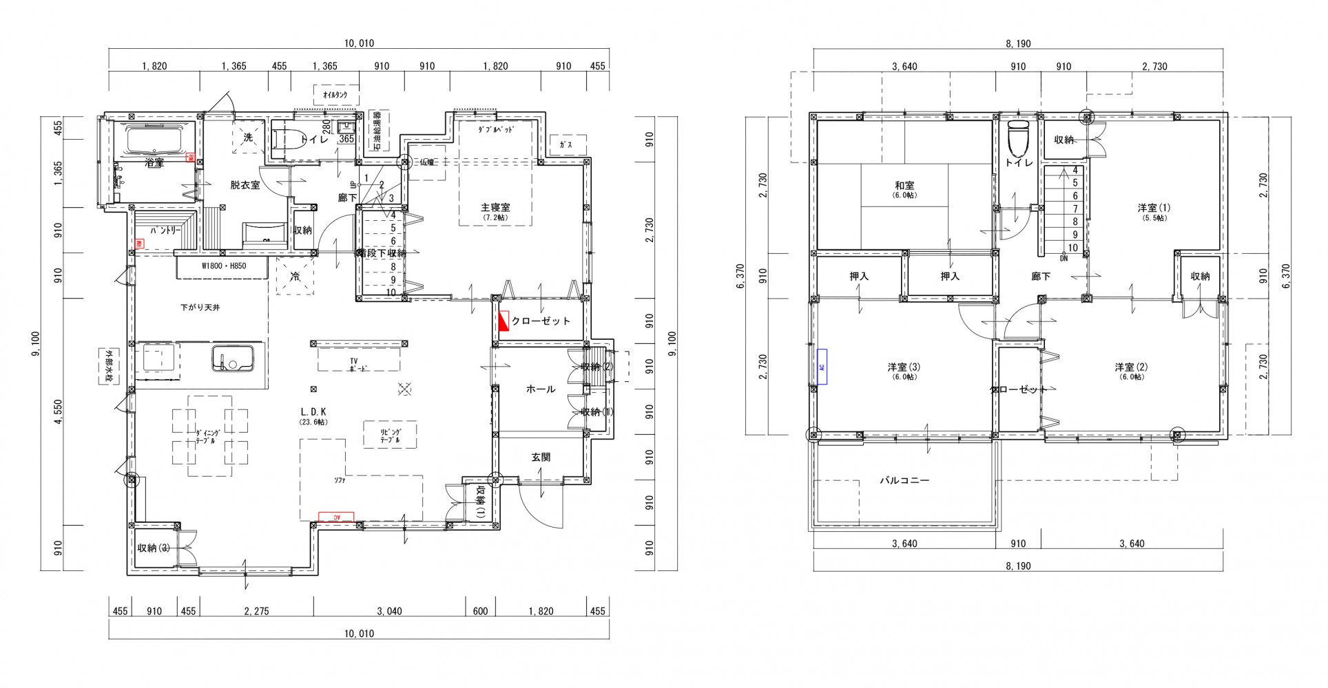
| 間取り | 5LDK |
| 施工面積 | 66㎡ |
| 施工内容 | 365リノベ(改修) |
家事がしやすくなるように動線や収納まで細かく考えていただき、毎日の暮らしが本当に楽になりました。家族が自然とLDKに集まるようになり、以前より会話の時間が増えたのも嬉しい変化です。
対面キッチンを中心に、家族の気配を感じながら家事ができる間取りと動線計画を大切にしました。収納の位置や使い勝手まで丁寧に整えることで、日々の暮らしが無理なく心地よくまわる住まいをご提案しました。
どうぞお気軽にお問い合わせください
中古戸建て・中古マンション・土地などの物件探しやリフォーム、
売却のことまで不動産に関することならお任せください!