| 建築年月 | 平成2年10月 |
|---|---|
| 築年数 | 築34年 |
| 工期 | 3ヶ月 |
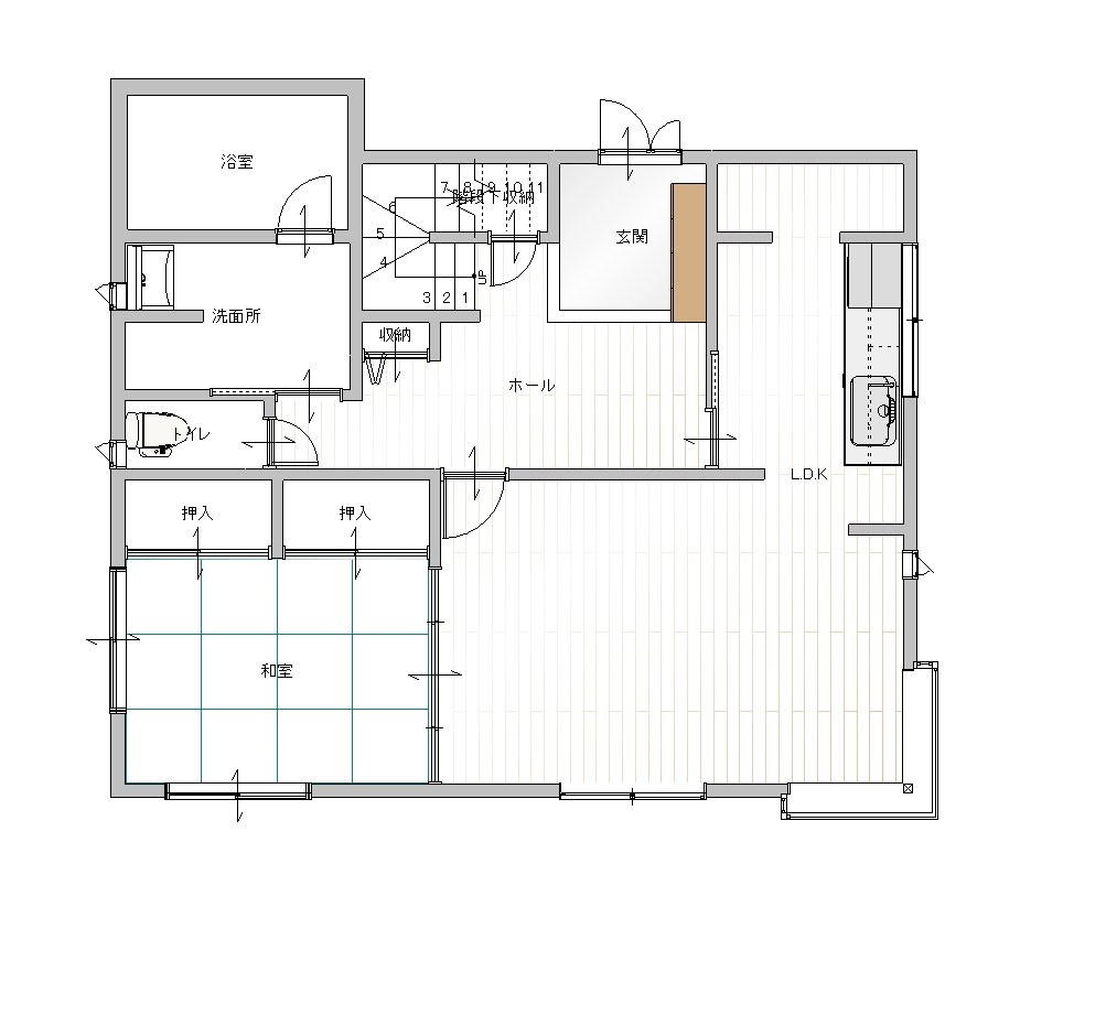
| 間取り | 4LDK |
| 施工面積 | 56.19㎡ |
| 施工内容 | 365リノベ(改修工事) |
まるで自分の家とは思えないほど素敵になりました。自分好みの空間に仕上げていただき、ありがとうございました。大満足です!
温かみのあるジャパニーズモダンがお好みだったお施主様のために、木材の縦格子を取り入れ、押入れだった部分を床の間に変更しました。床の間には、照らしたい場所や対象に合わせて光の向きを変えられるダウンライトを設置。さらに、R状の下がり天井やプリーツスクリーンを採用し、既存の畳を活かしながら、よりスタイリッシュな和室に仕上げました。
どうぞお気軽にお問い合わせください
中古戸建て・中古マンション・土地などの物件探しやリフォーム、
売却のことまで不動産に関することならお任せください!