| 建築年月 | 1974年12月築 |
|---|---|
| 築年数 | 築50年 |
| 工期 | 3.5ヶ月 |
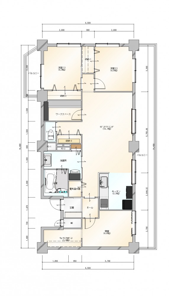
| 間取り | 3LDK |
| 施工面積 | 91.3㎡ |
| 施工内容 | 365リノベ(改修) |
リノベーション前とはまったく違う雰囲気で、上質で落ち着いた空間に生まれ変わりました。
家事の動線も整い、毎日の暮らしがとても快適です。分かれていた居間やキッチンがひとつのLDKになり、家族が自然と集まって過ごす時間が増えました。休日にはソファでコーヒーを飲みながら映画を見たり、照明を落として音楽を聴いたり――そんな穏やかな時間を楽しんでいます。憧れていた暮らしが現実になり、これからの毎日がますます楽しみです。
築50年のSRC造マンションを、上質で洗練された空間へとリノベーションしました。
分かれていた居間・洋室・キッチンを一体化し、家族が自然と集まれる広々としたLDKに。キッチンは移設し、リビング全体を見渡せるように計画しました。ご主人が在宅勤務されるため、家事と仕事のどちらもしやすいように、LDKからワークスペースへスムーズにアクセスできる動線を設けています。“日常の中に上質さを感じる暮らし”をテーマに、憧れのライフスタイルを形にしたリノベーションです。
どうぞお気軽にお問い合わせください
中古戸建て・中古マンション・土地などの物件探しやリフォーム、
売却のことまで不動産に関することならお任せください!