福島市 中古住宅リノベーションの365リノベ福島スタジオ 熊谷です。
自然豊かな環境の広い土地に建物がなんと2棟
ガレージやテラス・ウッドデッキ付きの物件です!
2世帯として、趣味の場所として、物置として、片方をDIYする、、、など使い方は様々でリーズナブル♪
コンビニも徒歩圏内と生活にも困りません。
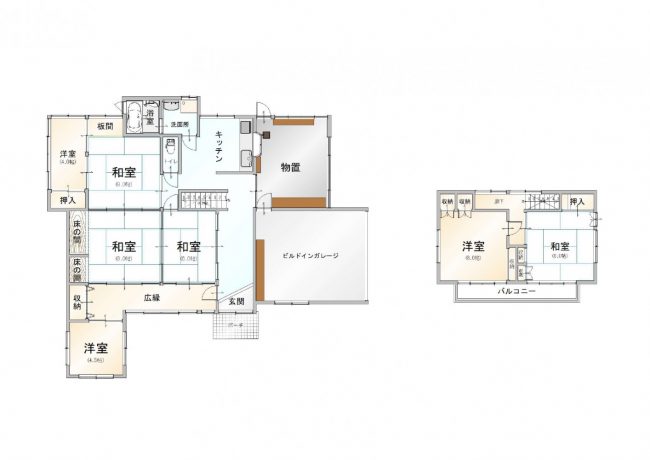
霊山掛田字東陣場 7SDK+7SDK 1,200万円




ご要望にそったリフォームやリノベーションも承っております!
福島市 中古住宅リノベーションの365リノベ福島スタジオ 熊谷です。
自然豊かな環境の広い土地に建物がなんと2棟
ガレージやテラス・ウッドデッキ付きの物件です!
2世帯として、趣味の場所として、物置として、片方をDIYする、、、など使い方は様々でリーズナブル♪
コンビニも徒歩圏内と生活にも困りません。
霊山掛田字東陣場 7SDK+7SDK 1,200万円




ご要望にそったリフォームやリノベーションも承っております!
どうぞお気軽にお問い合わせください
中古戸建て・中古マンション・土地などの物件探しやリフォーム、
売却のことまで不動産に関することならお任せください!